2013/2014: Ampliamento fabbricato ad uso produttivo / uffici sito nel Comune di Rossano Veneto - TV. Dati Tecnici: 27000 mc - caldaie a gas a condensazione + Pompe di calore aria - acqua reversibili. Imianto ad aerotermi zone produttive-magazzini. Impianto a ventilconvettori ed aria primaria zone uffici e show room. Potenza Termica/Frigorifera Installata: 560kW / 190kW (comprensiva sia dell'ampliamento che della porzione di fabbricato esistente)
Progetto realizzato presso SINT INGEGNERIA, Bassano del Grappa (VI)
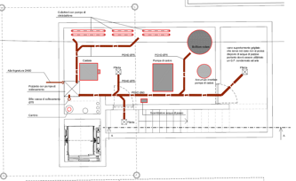
Particolare schema funzionale
2013: Impianto di climatizzazione estiva ed invernale e di ventilazione meccanica controllata presso abitazione sita nel comune di Rossano Veneto (TV). Dati Tecnici: 450 mq - Pompa di calore aria/acqua di tipo splittato + caldaia murale a condensazione di integrazione. Impianto di rinnovo aria con recuperatore in pompa di calore. Impianto radiante a pavimento con integrazione mediante ventilconvettori (per solo raffrescamento estivo). Potenza Termica/Frigorifera Installata: 25 kW(caldaia) + 16kW (pompa di calore-caldo) / 16kW (pompa di calore - freddo). Edificio in Classe A
Progetto realizzato presso SINT INGEGNERIA, Bassano del Grappa (VI)
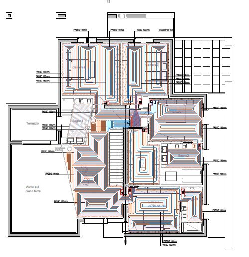
Impianto radiante piano primo
2013. Venezia, zona aeroporto. Impianto di climatizzazione estiva ed invernale, idrico sanitario e rinnovo d'aria con recupero di calore per ampliammento area uffici in edificio esistente. Superficie ampliamento pari a circa 400 mq. Sostituzione refrigeratore esistente ed installazione di una nuova centrale di trattamento aria
Progetto realizzato presso SINT INGEGNERIA, Bassano del Grappa (VI)
Impianto aeraulico
Dettaglio impianto aeraulico
Particolare Schema funzionale
2013: Impianti idrico sanitari e di climatizzazione estiva ed invernale e di ventilazione meccanica controllata presso abitazione sita nel comune di Fontaniva (PD). Dati Tecnici: 300 mq - Pompa di calore aria/acqua di tipo splittato + caldaia murale a condensazione di integrazione. Impianto di rinnovo aria con recuperatore in pompa di calore. Impianto radiante a pavimento con integrazione mediante ventilconvettori. Impianto solare termico (superficie 10 mq). Potenza Termica/Frigorifera Installata: 15 kW(caldaia) + 8kW (pompa di calore-caldo) / 8kW (pompa di calore - freddo). Edificio in Classe A
Impianto di rinnovo aria piano primo
2012: Impianti idrico sanitari e di riscaldamento per abitazione primi '900 ristrutturata sita nel comune di Crocetta del Montello (TV). Dati Tecnici: 420 mq caldaia a condensazione ed impianto solare termico.
Isolamento termico interno.
Progetto realizzato presso SINT INGEGNERIA, Bassano del Grappa (VI)
Copertura isolata con materiale termoriflettente stratificato
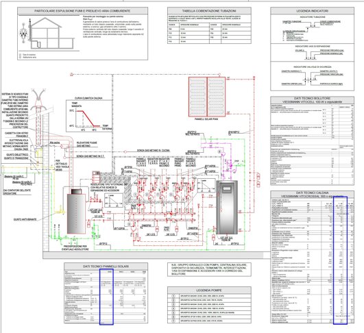
Schema funzionale centrale termica

2011: Appartamento sito nel comune di Castelfranco veneto. 185 mq. Ristrutturazione da edificio anni '60. Isolamento a cappotto (10 cm) più isolamento sottotetto (20 cm in lana di roccia). Vetrate basso emissive. Impianto a pompa di calore di tipo splittato aria / acqua: sezione esterna con ventilatore plug fan e batteria ad R410A; sezione interna con pompa di calore ad INVERTER completa di sezione idronica con pompe di rilancio. Climatizzazione estiva ed invernale di tipo radiante con pannelli a soffitto. Rinnovo d'aria e deumidificazione estiva mediante centrale di trattamento con filtrazione elettrostatica e recupero del calore mediante ciclo frigorifero. Collettore di mandata aria circolare in lamiera zincata ubicato nel sottotetto; stacchi ai diffusori mediante condotti flessibili coibentati. Mandata nelle zona nobili mediante diffusori lineari a feritoia, ripresa da bagni e cucina. Potenza Termica / frigorifera installata ~7 kW. Impianto solare termico (4 mq per sola acqua calda potabile) ed impianto fotovoltaico da 2,7 kW di picco. Abitazione in Classe A+
Particolare pompa di calore utilizzata
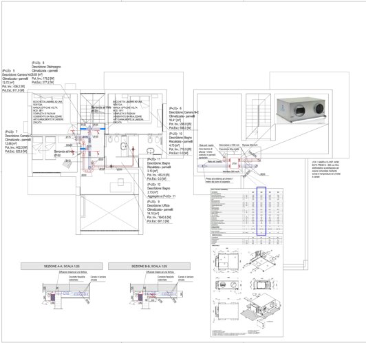
Pianta del piano primo con impianto di climatizzazione a soffitto
2010. Edificio direzionale sito nel comune di Bassano del Grappa (VI) costituito da 3 piani fuori terra e da due piani interrati adibiti ad autorimessa. 23 Unità immobiliari. Auditorium. Palestra. Impianto di climatizzazione estiva ed invernale del tipo radiante a soffitto. Impianto di produzione dell'energia termica e frigorifera di tipo centralizzato (caldaie a gas a condensazione e refrigeratore in pompa di calore). Rinnovo d'aria conrecupero del calore. Volume Lordo 17.000 mc, Potenza termica installata 220 kW divisa in 4 caldaie da 55 kW cadauna; Potenza frigorifera installata 187 kW.
Progetto realizzato per SINT INGEGNERIA
Modello 3D utilizzato per l'esecuzione dei calcoli termici
Particolare impianti di climatizzazione radiante di una singola unità immobiliare
2011: Impianti idrici sanitari e di climatizzazione estiva ed invernale per edificio residenziale in Spello (PG).
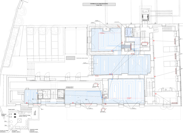
Impianto di riscaldamento, rinnovo aria con deumidificazione e trattamento acqua piscina coperta.
Impianto a pavimento radiante per riscaldamento e raffrescamento con integrazione mediante ventilconvettori.
Superficie riscaldata edificio circa 800 mq, Volume lordo circa 4100 mc. Potenza termica installata 55 kW, caldaia a condensazione. Refrigeratore reversibile (pompa di calore) condensato ad acqua di pozzo. Classe energetica C
Progetto realizzato per SINT INGEGNERIA
Modello tridimensionale dell'edificio utilizzato per i calcoli termici
Particolare impianto radiante al piano terra
Particolare impianto di ventilazione piscina ed area relax
Disposizione apparecchi in centrale termofrigorifera
2009. Abitazione privata sita nel comune di Cittadella (PD).
Struttura prefabbricata in legno. Impianto di riscaldamento e produzione di acqua calda potabile con integrazione solare
Particolare realizzativo impianto radiante a pavimento